松山市北斉院町 新築売家

掲載開始日

2025年10月30日

物件種別
  • 【売】一戸建て
所在地 愛媛県松山市北斉院町678番地8 交通 バス停: 味生 徒歩 3分
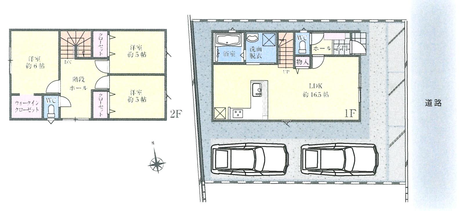
価格 2,490万円 建物面積 83.62㎡(25.29坪) 間取り 3LDK
築年月 2025年01月 校区 味生第二小学校/津田中学校

外観

LDK LDK LDK 洗面所 1階トイレ 2階洋室6帖 2階洋室6帖 2階南洋室5帖 2階北洋室5帖 2階北洋室5帖 2階トイレ
物件番号

--

物件詳細

物件名 松山市北斉院町 新築売家
所在地 愛媛県松山市北斉院町678番地8 交通 バス停: 味生 徒歩 3分
価格 2,490万円 間取り 3LDK 土地権利 所有権 建物構造 木造 土地面積 105.09㎡(31.79坪)
建物面積 83.62㎡(25.29坪) 私道負担面積 --(--) 築年月 2025年01月 借地期間 -- 地代(月額) --
都市計画 市街化区域 用途地域 第一種住居地域 地目 宅地 建ぺい率 60% 容積率 200%
新築・未入居 建物の現況 空家 引き渡し 相談 引き渡し可能年月 -- 敷金 --
保証金 -- 維持費等 -- : -- その他一時金
建物階数(地上) 2階 建物階数(地下) -- バルコニー向き 屋根 その他
リフォーム工事年月 -- リフォーム補足事項 --
間取り内訳 LDK16.5帖/洋室5.0帖/洋室5.0帖/洋室6.0帖 接道状況 一方 接道
方向 間口 種別 幅員 位置指定
-- 私道 4m --
権利金 -- 国土法届出 不要 建築確認番号 -- 駐車場 駐車料金

無料

紹介文 --
備考 ※P2台可

設備・特徴

照明器具 システムキッチン カウンターキッチン 床下収納 洗面所 閑静な住宅街 駐車場2台分 ウォークインクローゼット 温水清浄便座 給湯 室内洗濯機置場 浴室乾燥機 モニタ付インターホン シャワー トイレ トイレ2ヶ所 B・T別室 洗髪洗面化粧台 複層ガラス 上水道 下水道 電気

近傍の同種の物件

近傍に同種の物件はありません。